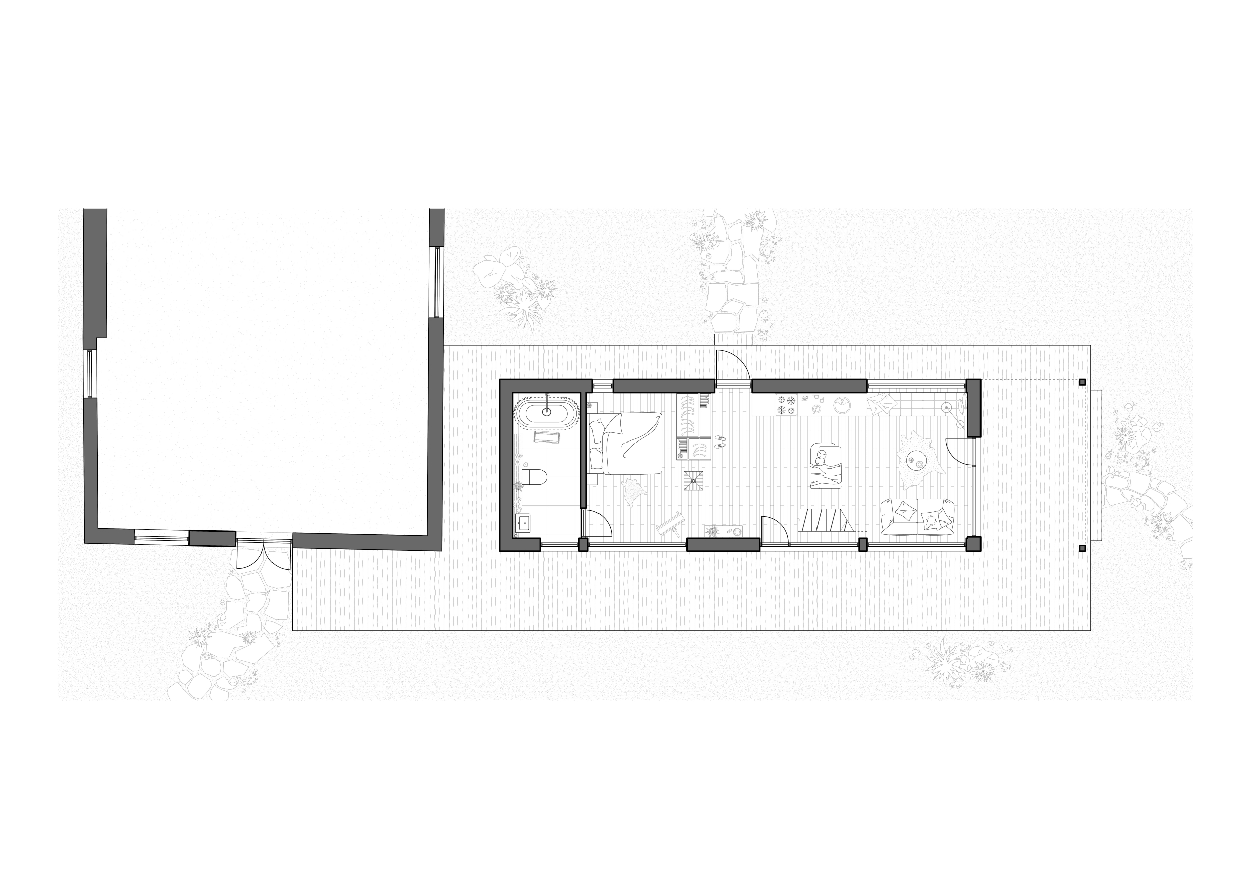
The Ex’s Box is a summer house in Padaoru, designed by Ott Kadarik for his ex-wife, heritage and conservation expert Hilkka Hiiop. Appropriate to the owner’s occupation, the house is located in the crumbling manor complex, in the heart of a cattle castle with buildings in various stages of decay. The laconic volume with a timber finish slightly raised at one end is strategically placed in a square enclosure with limestone and rubble walls, articulating it into markedly defined outdoor spaces of varying sizes and moods.
In this way, the spacious open-plan interior is complemented by several outdoor spaces open to the sky. The interior and the exterior are inseparably linked by large sporadic glass surfaces cut into solid wood walls and a terrace area with a canopy around the building. Old love does not tarnish, however, it may happen to the large number of recycled materials used for the finishing inside and outside. The interior is accentuated by a rusting cast-iron bathtub with an exposed exterior, an old steel barrel adapted for a table leg, and a picturesquely restored historic wooden door. The façade is covered with a mosaic of hand-picked scrap wood of all ages, quality and appearance.
Text: Kaarel Künnap





