Hoovimaja asub Tartus endise korp! Lettonia konvendihoone (1897) sisehoovis. Kahekorruseline peamaja astub eesaiaga tänavajoonelt tagasi ja lükkab hoovimaja sügavale kvartali sisemusse, kus tänavamüra on asendunud roheliste viljapuuaedadega.
Hoovimaja on ümber ehitatud kahekohalisest garaažist, mis ehitati 1960ndatel metsatööstuse autodele. Garaaži seinad ehitati kõrgete metsaveomasinate tõttu erandlikult kuni 4 meetrit kõrged.
Ajaloolistele allikatele tuginedes on garaaž ehitatud ringmaterjalist. Üheks selliseks materjalilaoks muutus sõjas kahjustada saanud Armas Lindgreni kavandatud Vanemuise teatrihoone, mille telliseid on ilmselt garaaži ehitamisel kasutatud.
Kuni 2023. aastani remonditi garaažis kasutatud autosid ja ladustati asju. Siis pandi garaaž müüki koos elamuprojektiga, mis ajaloolist tellismüüri ja kõrget ruumi säilitamisväärseks ei pidanud. Ometi nägid uued omanikud ja arhitektid väärtust nii asukohas, ajaloolises müüris kui ruumigeomeetrias.
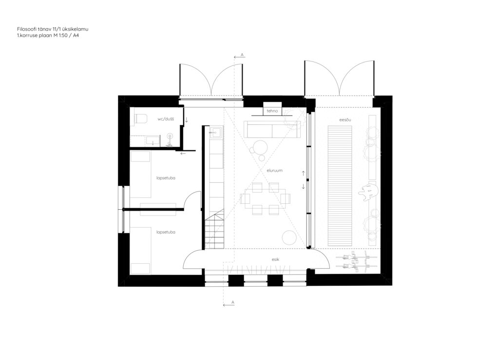
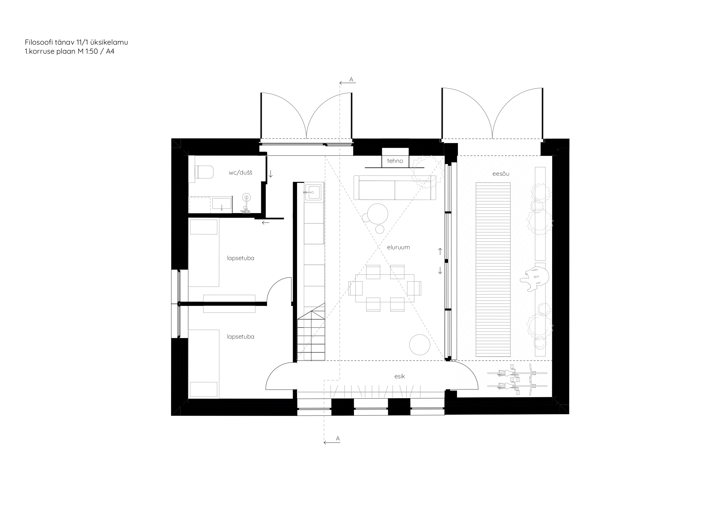
Vanade müüride vahele ja kohale kavandati kompaktne linnaelamu, mis on elamiseks piisav neljaliikmelisele perekonnale. Asukoht kesklinna piiril, sisehoovide vaikses rohelises vöös kasutab ära võimaluse, et olla heas ühenduses nii avalike funktsioonide kui ka linnaloodusega.
Lihtsus ja avarus 80-ruutmeetrises elamus loovad ruumikvaliteedi, mida argielus hinnata. Kõrge õhuruumiga elutuba avatuna privaatsesse eeshoovi annab väärtuse, mida suuremad ruutmeetrid ei kompenseeriks. Lastetoad on kavandatud minimaalse suurusega, et panustada maksimaalselt ühiselt kasutatavatesse ruumidesse.






