Suvila asub loodusliku lagendiku serval, ranna lähedal künklikul krundil. Siin on nagu väike lävi metsa ja mere vahel – tagant kaitseb männimets, eest avaneb vaade rannale. Maja kavandati suvekoduna, mida saab kasutada ka talvel. Lähtepunkt oli lihtne: mida on vaja Eesti suves? Vastus – avarust ja katusega väliruumi.
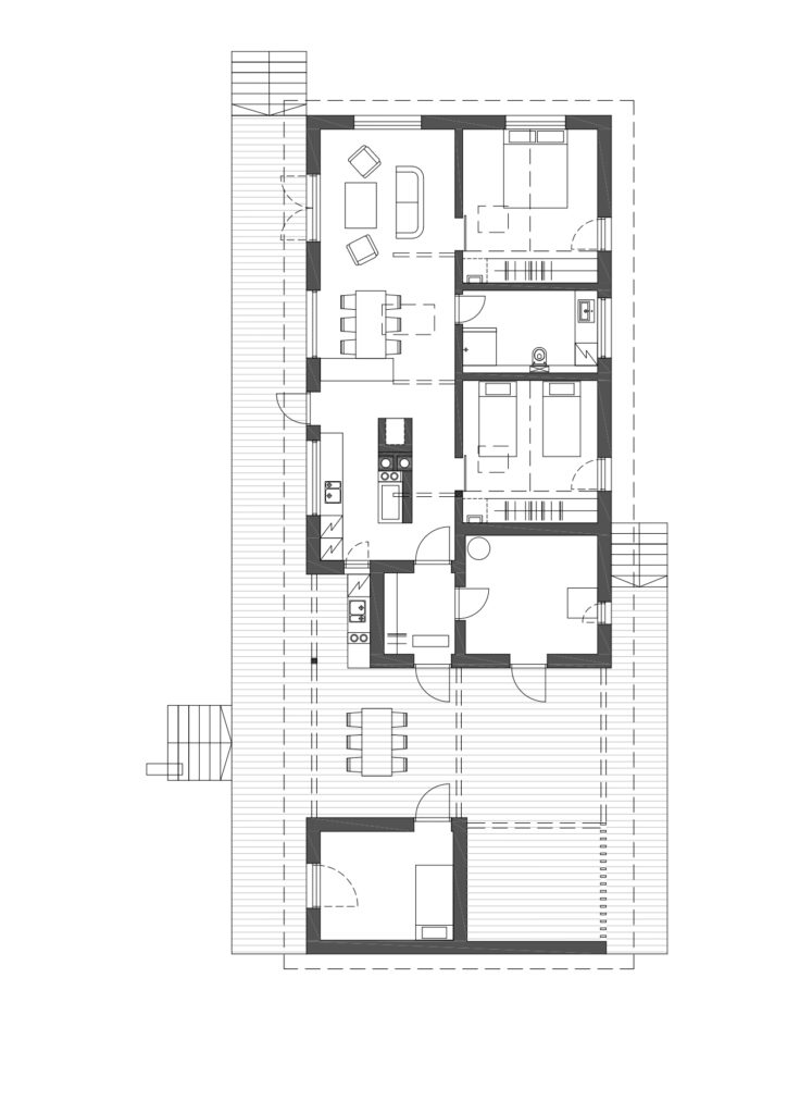
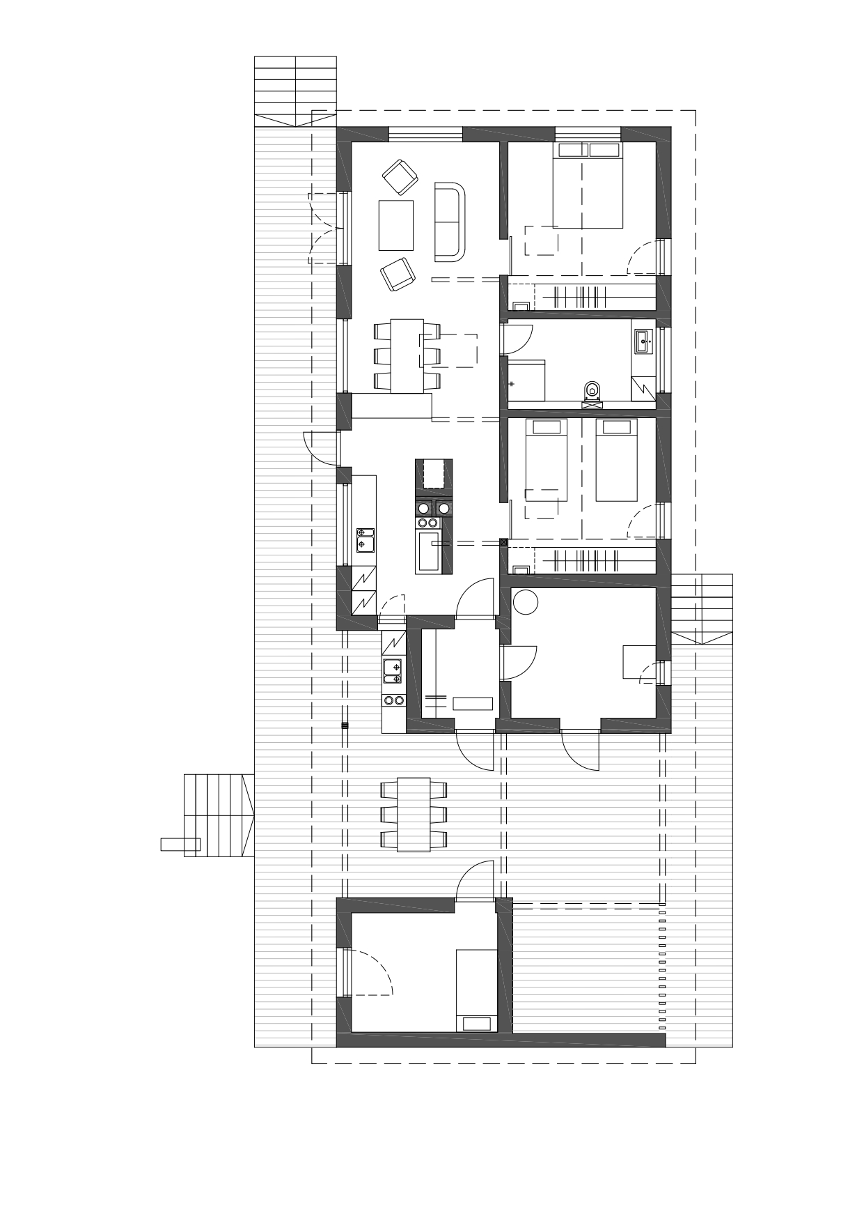
Lihtsa vormiga suvekodu koosneb peamajast, külalisteplokist ja nende vahele jäävast õueruumist, mis toimib nii sissepääsu kui ka suvise elutoa ja tööalana.
Peakatuse all on avatud elutsoon ja väiksematesse viilumahtudesse põimitud kinnised toad. Need toetavad peakatust ja loovad erilise sisemise rütmi teisel tasandil paiknevate lugemisniššide näol. Katuseaken toob ruumi muutuvat valgust, mis päeva jooksul liigub ja interjööri elustab.
Laudise rahulik jooks ühendab väli- ja siseruumi üheks tervikuks. Tume fassaad sulandub maastikku, interjööris annab must lepp kerge sooja roosaka tooni. Põrand on saarepuidust, katus valtsplekist – lihtne ja ajatu kooslus.
Tulemuseks on rahulik, inimlik suvekodu, mille vorm ja proportsioonid meenutavad Eesti rehielamut ning sobituvad loomulikult Rannaküla maastiku ja vaimuga.







